|
Šioje svetainėje naudojami slapukai (ang. cookies). Toliau naršydami svetainėje arba paspaudę mygtuką "Sutinku", Jūs sutinkate su slapukų naudojimu. |
| Sutinku |
Aukštos kokybės vaikų žaidimų įranga su patvaria cinkuota ir milteliniu būdu dengta plieno konstrukcija, HDPE bei HPL elementais. Konstrukcija yra saugi – nėra aštrių briaunų ar pavojingų angų, tinkama naudoti viešosiose žaidimų aikštelėse. Įrangai suteikiama iki 30 metų garantija, priklausomai nuo komponentų tipo. Produktas sertifikuotas pagal EN 1176-1:2017+A1:2023 standartą.
Galimos konstrukcijos spalvos

Cinkuota milteliniu būdu ir milteliniu būdu dengta arba nerūdijančio plieno konstrukcija 80 x 80 mm profilio;
Platformos ir laipiojimo sienelės pagaminti iš patvarios neslidžios ir vandeniui atsparios HPL plokštės;
Stogai ir šoniniai skydai pagaminti iš patvarios HDPE arba HPL plokštės, atsparios oro sąlygoms;
Permatomos polikarbonato plokštės su oro sąlygoms atspariu spaudu;
Čiuožyklos pagamintos iš nerūdijančio plieno ir/arba plastmasės, su patvariais HDPE šoniniais skydais;
Gaisrininko stulpas pagamintas iš nerūdijančio plieno;
Nerūdijančio plieno ir/arba plastmasinė tunelinė čiuožykla;
Muzikinės plokštės pagamintos iš patvarios HDPE ir HPL plokštės, atsparios oro sąlygoms;
Piešimo lenta pagaminta iš patvarios HPL plokštės, atsparios oro sąlygoms;
Teleskopas, pagamintas iš nerūdijančio plieno ir patvarios HDPE plokštės, atsparios oro sąlygoms;
Labirinto langai pagaminti iš polikarbonato, kamuoliukai - iš sintetinės medžiagos;
Patvarūs laipiojimo akmenys pagaminti iš poliesterio dervos kompozito su mineraliniais užpildais;
Plieniniai lynai, pinti iš polipropileno, sujungti patvariais plastikiniais, nerūdijančio plieno arba aliuminio elementais;
Kalibruotos nerūdijančiojo plieno grandinės, apsaugančios pirštus nuo įstrigimo;
Sertifikuotos, saugios sėdynės;
Nerūdijančio plieno strypai ir turėklai;
Varžtai su plastikiniais dangteliais ir (arba) nerūdijančio plieno varžtais;
Saugūs viršutinės konstrukcijos dangteliai pagaminti iš gumos arba polipropileno.
Įranga pritaikyta vaikams su negalia;
Skirta viešosioms žaidimų aikštelėms;
Sertifikuota akredituotoje įstaigoje, atitikties deklaracija;
Nėra aštrių briaunų ar angų, kurios galėtų kelti pavojų, įstrigti galva, pirštai ar kitos kūno dalys;
Montavimas ant lygaus paviršiaus, 80/70cm gylyje;
Iliustracijos skirtos tik nuorodai, tikroji įrenginio išvaizda ir jo spalva gali skirtis.
Techniniai duomenys
Ilgis: 1530 cm
Plotis: 1520 cm
Aukštis: 955 cm
Amžiaus grupė: 4 - 14 metų
Vartotojų skaičius: 198 vaikai
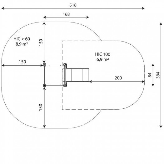
Apsaugos zona: 174,3 m²
Laisvojo kritimo aukštis: 270 cm
Didžiausios dalies svoris: 210 kg
Didžiausios dalies matmenys: 8x8x585 cm
Standartas: EN 1176-1:2017+A1:2023
Atsarginių dalių prieinamumas: taip
Garantijos
30 metų garantija: konstrukcinis plieno ir nerūdijančio plieno komponentų tvirtumas
15 metų garantija: dinaminės įrangos plieno ir nerūdijančio plieno konstrukcijos gedimui
10 metų garantija: HDPE ir aukšto slėgio laminatų struktūriniams gedimams
5 metų garantija: nerūdijančio plieno ir karštai cinkuotų bei milteliniu būdu dengtų komponentų korozijai; apsauga nuo žievės vabalų ir puvimo mediniuose komponentuose
Detalesnė informacija pateikta garantiniame talone