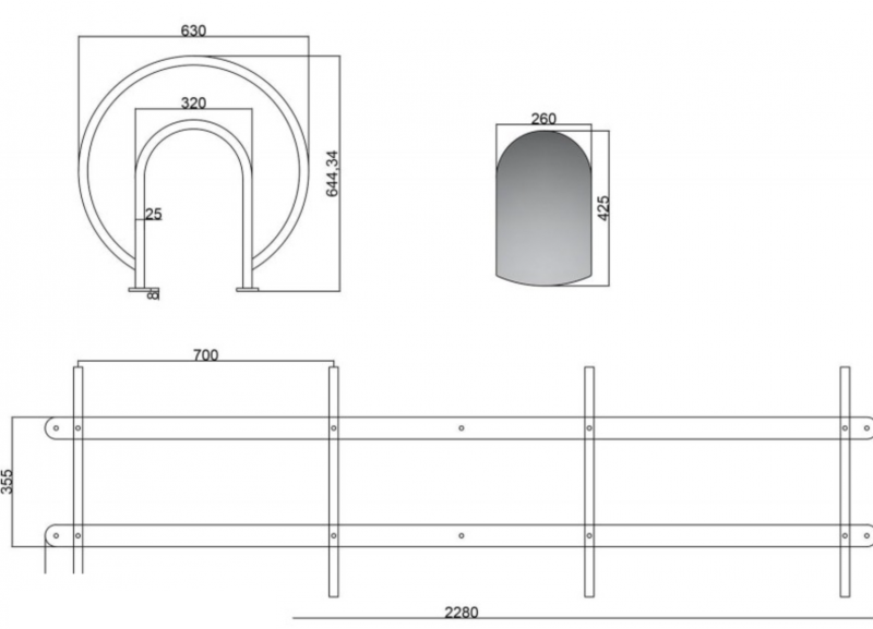
Vazonas IV
Kaina
675,68 EUR
Vazonas skirtas naudoti lauke ir viduje. Pagaminta iš spygliuočių medienos ir...
